FEATURED
8342sqft Fully Covered Merlimau Industrial Jasin Melaka
Jasin Industrial Park, Jasin, Melaka
RM 5,000
- Bed(s)
- Bath(s)
8,342 sqft(land area)
RM 0/sqft(land area price)
Property details
Factory/Warehouse for rent
Listed on 13 Apr 2026
Listing ID - LIDM3563689
8,342 sqft
(built-up area)
Partially Furnished
Vacant
Individual
ADVERTISEMENT
About the listing
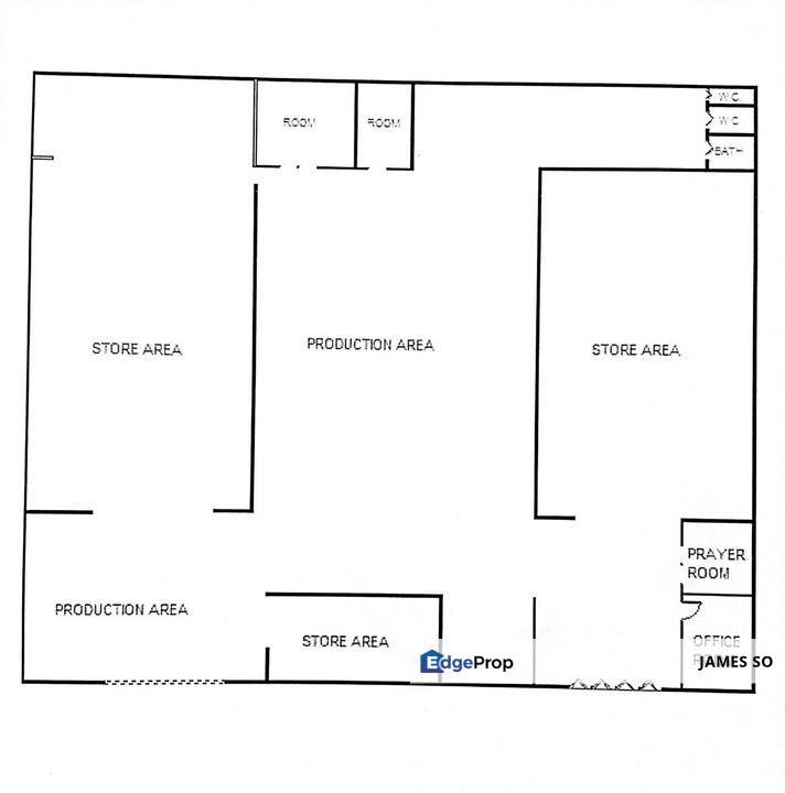
Merlimau Industrial Area Single Storey Factory/Warehouse 8342sqft Fully Covered Good Location Good condition No leaking RM5k monthly James 0149522681See More
FAQs (Powered by Ask EdgeProp)
JAMES SO
IQI REALTY SDN. BHD.