95 Landed properties for sale at Laurel @ Laman View
expand_moreSCROLL DOWN FOR MORE LISTINGSexpand_more
ADVERTISEMENT
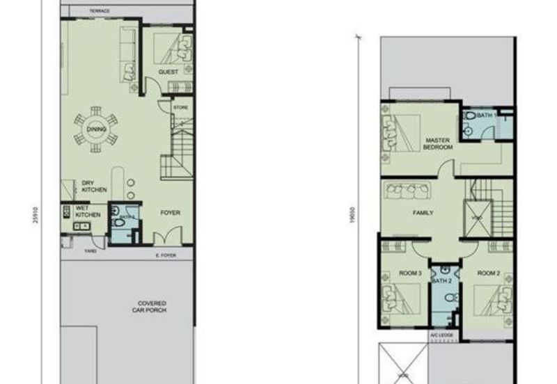
Laman View
Add to shortlist
RM 939,000(RM 410.94 Psf)
4 Bed(s)
3Bath(s)
1,870 sqft
ADVERTISEMENT
ADVERTISEMENT
Explore EdgeProp
There are 95 properties for sale based on your search criteria at Laurel @ Laman View. You can use the enhanced search filters available to find the right landed homes, condominium, bungalow or residential land in this area.
READ MORE