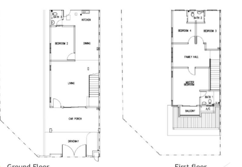
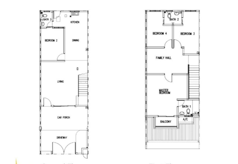
4 Landed properties for sale at Pekan Sabak Bernam
ADVERTISEMENT
ADVERTISEMENT
Explore EdgeProp
There are 4 properties for sale based on your search criteria at Pekan Sabak Bernam. You can use the enhanced search filters available to find the right landed homes, condominium, bungalow or residential land in this area.
READ MORE