306 Industrial properties for rent at Eco Business Park V
expand_moreSCROLL DOWN FOR MORE LISTINGSexpand_more
ADVERTISEMENT
Eco Business Park V
Add to shortlist
RM 21,500(RM 2.96 Psf)
- Rooms
-Bath(s)
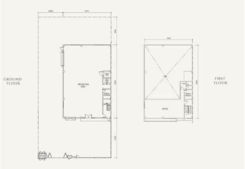
7,260 sqft
......
ADVERTISEMENT
ADVERTISEMENT
Explore EdgeProp
There are 306 properties for rent based on your search criteria at Eco Business Park V. You can use the enhanced search filters available to find the right shops, office, shop house, factory, industrial land or commercial land in this area.
READ MORE